Продається квартира Вінницька, Вінниця, Замостянський, Янгеля (№ 213-008-333)

Ціна: 66 500 $
Характеристики
Ціна: | 66 500 $ |
---|---|
№ об'єкта: | 213-008-333 |
Кімнат: | 2 |
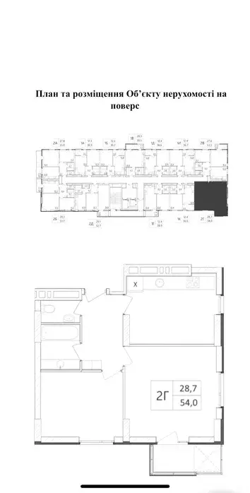
Поверх: | 10 / 16 ліфт |
Площа: | 54 / - / 12 м2 |
Адреса: Вінницька, Вінниця, Замостянський, Янгеля
Пропонується 2-х кімнатна квартира в перспективними та комфортного ЖК 'Дім на Янгеля'. Дуже зручне розташування , поруч є ВСЕ) , крім трамвайних ліній. Квартира має гарне планування , панорамні вікнами з гарним видами, також передбачена гардеробна , великий санвузол та великі кімнати. В будинку є вантажний та пасажирські ліфти , які працюють ,навіть при відключення електрики, також будинок обладнаний генераторами для підтримання тепла в будинку. Гарний закритий двір з пропускною системою. Є дитячий майданчик та паркомісця під авто. Перегляд в любий зручний для вас час з 9:00 до 20:00. ).Вид обєкта: Новобудова;Тип будинку: Житловий фонд від 2021 р.;Тип угоди: Переуступка;Тип стін: Монолітний;Планування: Роздільна;Cанвузол: Роздільний;Опалення: Власна котельня;Меблювання: Ні;Інфраструктура (до 500 метрів): Школа, Лікарня, поліклініка, Супермаркет, ТРЦ, Ресторан, кафе, Дитячий майданчик, Аптека, Магазин, кіоск, Залізнична станція, Парк, зелена зона, Автовокзал, Відділення банку, банкомат, Відділення пошти, Дитячий садок, Зупинка транспорту;Ландшафт (до 1 км.): Річка, Парк;